Piła, Górne

Mieszkanie na sprzedaż

Opis nieruchomości

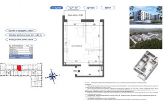
Mieszkanie 2 pokojowe o pow. 41,46m2 z balkonem na Osiedlu Lotników II.

Przedmiotem sprzedaży jest funkcjonalne mieszkanie w stanie deweloperskim.

Do końca marca 2026 r., przy zakupie mieszkania, cena obejmuje wykonanie gładzie w całym mieszkaniu.

Kupujący nie płaci prowizji!
Gwarancja ceny Dewelopera!

Rozkład mieszkania:

- salon wraz z aneksem kuchennym o pow. 21,82 m2,
- pokój o pow. 10,45 m2,
- łazienka z WC o pow. 4,37 m2,
- korytarz o pow. 5,80 m2.

Mieszkanie jest jasne i słoneczne. Wysokość pomieszczenia od 3,0-3,10m dająca dużo przestrzeni i możliwości aranżacyjnych. W całym mieszkaniu ogrzewanie podłogowe.

Możliwość dokupienia miejsca postojowego w cenie 20 000zł oraz komórki lokatorskiej w cenie cenie od 11 000 zł/ w zależności od wielkości.

W inwestycji dostępne również inne mieszkania 1,2 i 3 pokojowe w metrażach od 25m2-72m2. Na parterze mieszkania z ogródkiem.

Blok bez barier architektonicznych.

Zapraszam na prezentację.

Nota prawna

Opis oferty zawarty na stronie internetowej sporządzony jest na podstawie oględzin nieruchomości oraz informacji uzyskanych od właściciela. Może on podlegać aktualizacji i nie stanowi oferty w rozumieniu art. 66 i następnych Kodeksu Cywilnego.

Szczegóły oferty

Symbol oferty KNF-MS-1607
Powierzchnia 41,46 m²
Powierzchnia użytkowa 41,46 m²
Powierzchnia balkonów/tarasów 4,68 m²
Liczba pokoi 2
Piętro 2
Rodzaj budynku blok
Liczba pięter w budynku 3
Stan lokalu deweloperski
Stan prawny Odrębna własność lokalu
Okna PCV 3 szyby, ciepły montaż
Instalacje nowe
Balkon jest
Liczba balkonów 1
Rok budowy 2025
Widok na osiedle
Gaz brak
Woda tak - miejska
Dojazd asfalt
Otoczenie działki zabudowane
Ogrzewanie miejskie
Winda tak
Liczba wind 1
Usytuowanie środkowe
Drzwi antywłamaniowe tak

Pomieszczenia

Powierzchnia pokoi 21,82; 10,45 m2
Podłogi pokoi wylewka
Typ kuchni aneks kuchenny
Rodzaj kuchni aneks kuchenny - połączony z salonem
Podłoga kuchni wylewka
Typ łazienki razem z wc
Liczba łazienek 1
Powierzchnia łazienki 4,37 m2
Glazura łazienki bez glazury
Podłoga łazienki wylewka
Liczba przedpokoi 1
Powierzchnia przedpokoi 5,80 m2
Podłoga przedpokoi wylewka

Lokalizacja

Kalkulator kredytowy

PLN
%
Wysokość raty

Kalkulator kosztów

PLN
PLN
PLN
PLN
PLN
PLN
%
PLN
Podatek od czynności cywilno-prawnych
Taksa notarialna (opłata notarialna)
VAT od taksy notarialnej (opłaty notarialnej)
Wniosek do WKW
VAT od wniosku do WKW
Prowizja agencji nieruchomości
VAT od prowizji agencji nieruchomości
Wypisy aktu notarialnego - około
RAZEM (cena + opłaty)

Podobne oferty

mieszkanie na sprzedaż - Piła, Górne

mieszkanie na sprzedaż

Piła, Górne
2 pokoje 41,44 m2 8 800,00 zł/m2
mieszkanie na sprzedaż - Piła, Górne

mieszkanie na sprzedaż

Piła, Górne
1 pokój 41,90 m2 9 785,20 zł/m2
mieszkanie na sprzedaż - Piła, Zamość

mieszkanie na sprzedaż

Piła, Zamość
4 pokoje 64,62 m2 5 400,80 zł/m2
mieszkanie na sprzedaż - Piła, Śródmieście

mieszkanie na sprzedaż

Piła, Śródmieście
2 pokoje 61,00 m2 4 344,26 zł/m2

Napisz do nas

Proszę wypełnić to pole
Proszę wypełnić to pole
Proszę wypełnić to pole
Proszę wypełnić to pole
Trwa wysyłanie...

Ta strona wykorzystuje pliki cookies w celach statystycznych oraz w celu dostosowania naszych serwisów do indywidualnych potrzeb klientów. Zmiany ustawień dotyczących plików cookie można dokonać w dowolnej chwili modyfikując ustawienia przeglądarki. Korzystanie z tej strony bez zmian ustawień dotyczących cookies oznacza, że będą one zapisane w pamięci urządzenia.

rozumiem