Skoki

Mieszkanie na sprzedaż

Opis nieruchomości

Na sprzedaż mieszkanie 2 pokojowe w stanie deweloperskim - Skoki, ul. Antoniewska budynek wybudowany przez Mal-Bud Budownictwo Sp. z o.o.

Budynek gotowy - już wybudowany i oddany do użytkowania!!!

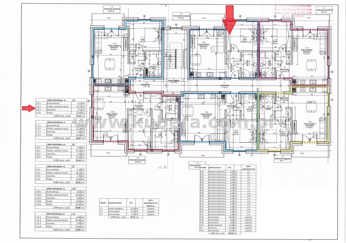
Powierzchnia użytkowa mieszkania: 47,59 m2.

Kupujący zwolniony z opłaty podatku PCC czyli 2% od ceny sprzedaży!
Niskie koszty notarialne.​


Budynek usytuowany w cichej i spokojnej okolicy, wśród zabudowy jedno i wielorodzinnej!!! 

Do mieszkania przynależy komórka lokatorska o pow. 2,45 m2.

Przed blokiem do dyspozycji mieszkańców bloku 26 miejsc postojowych.


Rozkład pomieszczeń:
  • komunikacja o pow. 5,21 m2,
  • pokój z aneksem kuchennym o pow. 23,77 m2,
  • łazienka o pow. 5,71 m2,
  • pokój o pow. 12,90 m2.
Blok został wybudowany w 2024 roku w technologii tradycyjnej, ściany wykonano z silki (zapewnia tłumienie hałasu i lepszą izolację akustyczną), dach płaski kryty papą, stropy kanałowe, budynek o konstrukcji niepalnej. 

Budynek wyposażony w instalacje:
  • wodną - zaopatrzenie z sieci wodociągowej,
  • elektryczną i oświetleniową - zaopatrzenie z sieci elektroenergetycznej,
  • kanalizacyjną - odprowadzanie ścieków do kanalizacji sanitarnej,
  • ogrzewania - z własnego źródła ciepła, kocioł gazowy umieszczony w kotłowni.
Zapraszam na prezentację!

Nota prawna

Opis oferty zawarty na stronie internetowej sporządzony jest na podstawie oględzin nieruchomości oraz informacji uzyskanych od właściciela. Może on podlegać aktualizacji i nie stanowi oferty w rozumieniu art. 66 i następnych Kodeksu Cywilnego.

Szczegóły oferty

Symbol oferty KNF-MS-1844
Powierzchnia 47,59 m²
Powierzchnia użytkowa 47,59 m²
Powierzchnia balkonów/tarasów 5,70 m²
Liczba pokoi 2
Piętro 1
Rodzaj budynku blok
Technologia budowlana tradycyjna
Opłaty wg liczników gaz, prąd, Woda ciepła, Woda zimna
Liczba pięter w budynku 2
Piwnica 2,45 m²
Stan lokalu deweloperski
Stan prawny Odrębna własność lokalu
Okna PCV
Instalacje dobre
Balkon jest
Liczba balkonów 1
Rok budowy 2024
Widok na inne budynki
Gaz jest
Woda piecyk gazowy
Dojazd droga utwardzona
Otoczenie las
Ogrzewanie C.O. GAZOWE
Usytuowanie środkowe
Klucze tak

Pomieszczenia

Powierzchnia pokoi 23,77/12,90 m2
Podłogi pokoi wylewka
Typ kuchni aneks kuchenny
Rodzaj kuchni aneks kuchenny - połączony z salonem
Podłoga kuchni wylewka
Typ łazienki razem z wc
Powierzchnia łazienki 5,71 m2
Podłoga łazienki wylewka
Liczba przedpokoi 1
Powierzchnia przedpokoi 5,21 m2
Podłoga przedpokoi wylewka

Lokalizacja

Kalkulator kredytowy

PLN
%
Wysokość raty

Kalkulator kosztów

PLN
PLN
PLN
PLN
PLN
PLN
%
PLN
Podatek od czynności cywilno-prawnych
Taksa notarialna (opłata notarialna)
VAT od taksy notarialnej (opłaty notarialnej)
Wniosek do WKW
VAT od wniosku do WKW
Prowizja agencji nieruchomości
VAT od prowizji agencji nieruchomości
Wypisy aktu notarialnego - około
RAZEM (cena + opłaty)

Podobne oferty

oferta na wyłączność
mieszkanie na sprzedaż - Skoki

mieszkanie na sprzedaż

Skoki
2 pokoje 41,71 m2 6 400,00 zł/m2
oferta na wyłączność
mieszkanie na sprzedaż - Skoki

mieszkanie na sprzedaż

Skoki
2 pokoje 47,65 m2 6 400,00 zł/m2
oferta na wyłączność
mieszkanie na sprzedaż - Skoki

mieszkanie na sprzedaż

Skoki
2 pokoje 52,27 m2 6 400,00 zł/m2
oferta na wyłączność
mieszkanie na sprzedaż - Skoki

mieszkanie na sprzedaż

Skoki
2 pokoje 52,10 m2 6 400,00 zł/m2

Napisz do nas

Proszę wypełnić to pole
Proszę wypełnić to pole
Proszę wypełnić to pole
Proszę wypełnić to pole
Trwa wysyłanie...

Ta strona wykorzystuje pliki cookies w celach statystycznych oraz w celu dostosowania naszych serwisów do indywidualnych potrzeb klientów. Zmiany ustawień dotyczących plików cookie można dokonać w dowolnej chwili modyfikując ustawienia przeglądarki. Korzystanie z tej strony bez zmian ustawień dotyczących cookies oznacza, że będą one zapisane w pamięci urządzenia.

rozumiem