Szydłowo (gw), Tarnowo

Działka na sprzedaż

Opis nieruchomości

Na sprzedaż – działka budowlana nad rzeką z potencjałem!

Działka oferuje bezpośredni, niczym nieprzysłonięty widok na rzekę, co stanowi wyjątkowy walor tej nieruchomości.

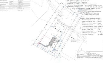
Prezentujemy atrakcyjną działkę budowlaną o powierzchni 4424 m², położoną w miejscowości Tarnowo, gmina Szydłowo – w spokojnej i malowniczej okolicy, z bezpośrednim dostępem do rzeki Dobrzycy.

Działka ma kształt prostokąta, jest w przeważającej części płaska a w pobliżu zejścia do rzeki- pochyła, z dostępem do drogi publicznej, co zapewnia wygodny dojazd przez cały rok. Dojazd drogą utwardzoną.

Najważniejsze atuty:
- Możliwość budowy domu jednorodzinnego – zostały już wyznaczone linie zabudowy.
- Działka oferuje bezpośredni, niczym nieprzysłonięty widok na rzekę, co stanowi wyjątkowy walor tej nieruchomości.
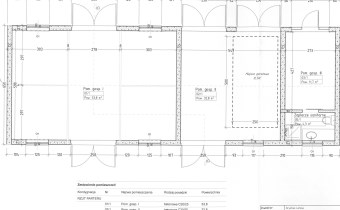
- Na działce rozpoczęto inwestycję budowy budynku gospodarczo-garażowego w stanie surowym otwartym (bez dachu) o łącznej powierzchni użytkowej 102,6 m², obejmującej:
  - Pomieszczenie gospodarcze nr 1 – 53,8 m² 
  - Pomieszczenie gospodarcze nr 2 z wydzielonym garażem – 32,8 m² 
  - Pomieszczenie gospodarcze nr 3 – 11,7 m² 
  - Zaplecze sanitarne – 4,3 m² 

To miejsce doskonale sprawdzi się zarówno pod zabudowę mieszkalną, jak i rekreacyjną — dla osób szukających przestrzeni, spokoju i kontaktu z naturą.

Warunki zabudowy budynku mieszkalnego:
- powierzchnia zabudowy od 90 do 180 m2
- szerokość elewacji frontowej od 10 do 14 m
- dach wielospadowy o kącie nachylenia od 30 do 45 stopni
- wysokość kalenicy od 6 do 9m

Zapraszamy do kontaktu i na prezentację!

 

Nota prawna

Opis oferty zawarty na stronie internetowej sporządzony jest na podstawie oględzin nieruchomości oraz informacji uzyskanych od właściciela. Może on podlegać aktualizacji i nie stanowi oferty w rozumieniu art. 66 i następnych Kodeksu Cywilnego.

Szczegóły oferty

Symbol oferty KNF-GS-2037
Powierzchnia 4 424,00 m²
Wymiary działki 36x125 m
Stan prawny własność
Zagosp. działki częściowo zagospodarowana
Ukształtowanie działki lekko nachylona
Kształt działki prostokąt
Ogrodzenie działki mieszane
Gaz brak
Woda brak
Dojazd droga utwardzona
Otoczenie rzeka
Położenie na wsi
Prąd na działce
Kanalizacja brak

Kalkulator kredytowy

PLN
%
Wysokość raty

Kalkulator kosztów

PLN
PLN
PLN
PLN
PLN
PLN
%
PLN
Podatek od czynności cywilno-prawnych
Taksa notarialna (opłata notarialna)
VAT od taksy notarialnej (opłaty notarialnej)
Wniosek do WKW
VAT od wniosku do WKW
Prowizja agencji nieruchomości
VAT od prowizji agencji nieruchomości
Wypisy aktu notarialnego - około
RAZEM (cena + opłaty)

Napisz do nas

Proszę wypełnić to pole
Proszę wypełnić to pole
Proszę wypełnić to pole
Proszę wypełnić to pole
Trwa wysyłanie...

Ta strona wykorzystuje pliki cookies w celach statystycznych oraz w celu dostosowania naszych serwisów do indywidualnych potrzeb klientów. Zmiany ustawień dotyczących plików cookie można dokonać w dowolnej chwili modyfikując ustawienia przeglądarki. Korzystanie z tej strony bez zmian ustawień dotyczących cookies oznacza, że będą one zapisane w pamięci urządzenia.

rozumiem